דברו איתנו
  • שטח: 59,000 מ"ר
  • סטטוס: ביצוע
  • יזם: יוניון נכסים בע"מ
  • מיקום: תל אביב, ישראל
מודלים
10 מודלים REVIT
על הפרויקט

מגדל לקסוס תוכנן לשנות את קו הרקיע של תל אביב ולספק סביבת עבודה חדשנית עם גישה נוחה לכל מרכזי התחבורה והעסקים המרכזיים בעיר. המגדל תוכנן לכלול שטחים מסחריים רחבים, משרדים מודרניים ומרחבים ציבוריים המשלבים נוחות עם יוקרה.

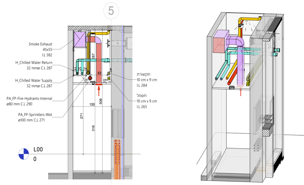
כיועץ אחראי על ניהול המודל ותיאום המערכות בפרויקט זה, בי.פי.אם סיפקה פתרונות ותהליכי עבודה כבר בשלבים הראשוניים על מנת לקחת בחשבון את כל האתגרים האפשריים בניהול מודל של כזה פרויקט.

תהליך הביצוע שרץ במקביל לתהליכי התכנון, אתגר את צוות ניהול המודל ותיאום המערכות בלספק תוצרים לשטח.

צוות בי.פי.אם מספק בפרויקט מגדל לקסוס תל אביב

  • הקמה וניהול המערכת שיתופית לכל המודלים
  • יצירת תהליכי עבודה BIM לכל המתכננים ולכל שלבי הפרויקט
  • הצבת יעדי BIM ברורים ובקרתם
  • מעקב על מידול ותוכן המידע והפצתו לכל צוות התכנון והניהול
  • תיאום פתרונות מערכתיים תוך חשיבה ביצועית ואחזקתי

אדריכל – משה צור אדריכלים, תברואה – פפיש, מ"א – הרואק,  קונסט – רמי בלס, חשמל – טיקטין, תקשורת – DIT, נוף – MAZA

קבלן ראשי – BST